BREATHTAKING LAKE VIEW WITH PRIVATE BEACH ACCESS! NEXT TO GOLF COURSE! | House in Garden City

5 Bedroom House in Sweetwater, Garden City
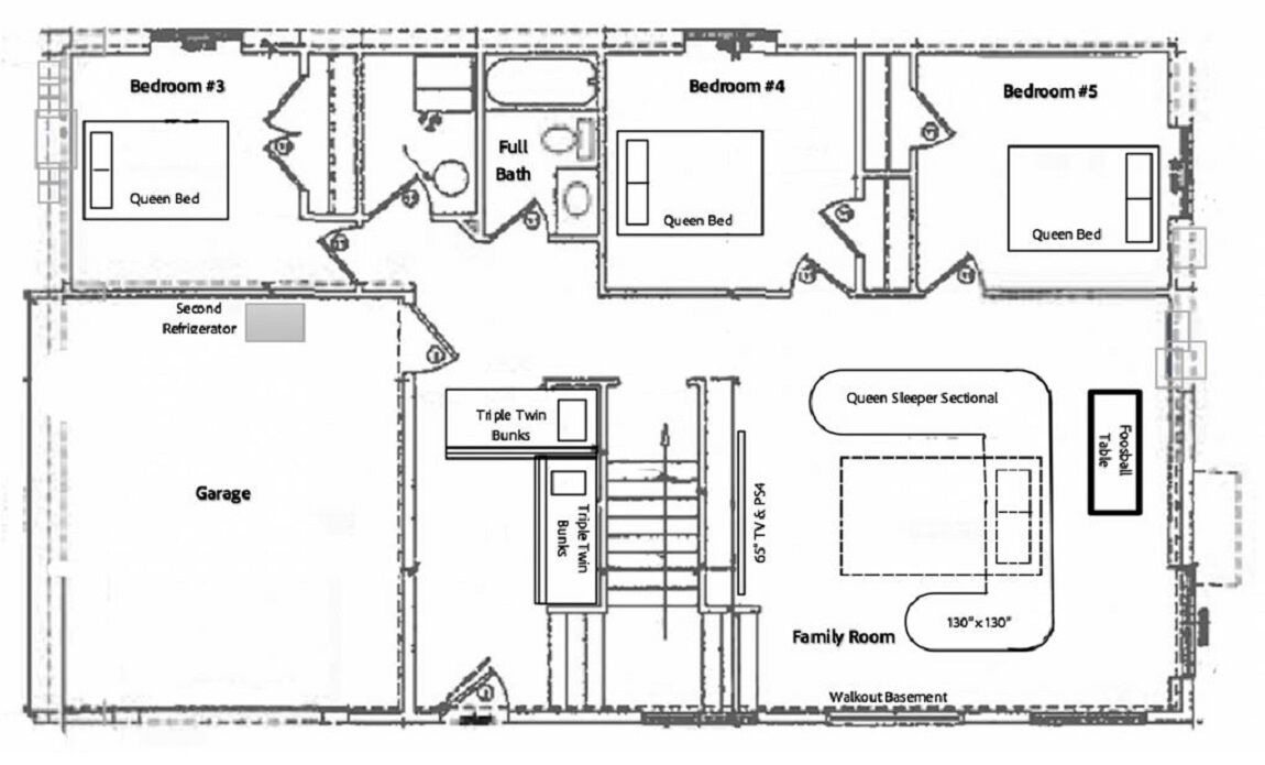
This cabin features 5 bedrooms and 3 bathrooms throughout a comfortable 3,000 square feet of tastefully modern living space. Bluebell Beauty has been designed to accommodate up to 25 guests and serves as the perfect home base for family reunions or corporate retreats! Look forward to beginning leisurely days on the home’s spacious deck while the sun emerges from the water-filled horizon, emitting an explosion of vibrant hues. When you enter the home, you’ll be captivated by the pristine beauty of the contemporary furnishings.
Everything you’ll need for a comfortable stay is here, including wireless internet access, central heating and air conditioning, in-unit laundry machines, a gas grill and a large 65-inch flat screen TV, one of 3 flat screen TVs that come equipped with Netflix and Amazon Prime access - sure to appease the whole family’s entertainment needs. To add to the home’s well-equipped interior, the downstairs living area has an incredible wrap around sectional and foosball table sure to offer hours of fun and friendly competition. With plenty of entertainment options for the kids, you’ll be able to spend the afternoon relaxing with a good book while the gas fireplace permeates warmth throughout the dwelling.
The spacious living area will quickly become your favorite place to wind down after a long day of outdoor exploration and lake fun, featuring soaring vaulted ceilings and floor-to-ceiling windows framing panoramic views of Bear Lake’s shimmering waters. Spend quality time relaxing on the comfortable couches with your loved ones as the aroma of a delicious home cooked meal radiates from the open kitchen, which is complete with additional bar seating and all the state-of-the-art appliances you’ll need to create culinary masterpieces. After eating dinner at the massive rustic dining table, head outside for a tranquil evening of storytelling and laughter around the outdoor gas firepit. When the fire dies down, head inside for a night of restful sleep and to reenergize for another exciting day in this northwestern slice of heaven.
You’re in for a treat during your stay in this wonderful subdivision of Sweetwater Park Golf Course. The residence is a short walk from golf course Clubhouse, and a short 5 min drive to Ideal Beach Resort (private beach) that includes swimming pools, hot tub, workout facility, basketball courts, game room, tennis courts, horseshoe pits, which can all be used free of charge during your stay. You will love the private beach on the edge of Bear Lake’s stunning blue waters, where guests can relax and have some fun in the sun accessed by a private gate.
Despite incredible comfort at the home and astounding community entertainment options, be sure to explore the surrounding area to experience all the excitement the region has to offer. For the outdoor enthusiasts in your group, recreational activities abound. ATV trails can be accessed from directly next to the development, perfect for a thrilling afternoon! During the winter months, pay a visit to The Sinks, a popular snowmobiling destination located a mere 20 minutes away. For more winter fun, make the short 25-minute drive to Beaver Mountain Ski Resort for a day of unforgettable fun on the slopes! After some exciting outdoor activities, head to nearby Garden City for an evening of local culture and delectable dining. Regardless of what time of year it is or how you choose to spend your time here, this exquisite Bear Lake vacation rental cabin will provide you with everything you’ll need for an unforgettable getaway!
BREATHTAKING LAKE VIEW WITH PRIVATE BEACH ACCESS! NEXT TO GOLF COURSE! is located in Sweetwater. BREATHTAKING LAKE VIEW WITH PRIVATE BEACH ACCESS! NEXT TO GOLF COURSE! provides accommodation, featuring TV, View, Balcony/Terrace, among other amenities. This House features TV, View, Balcony/Terrace, to make your stay a comfortable one.
BREATHTAKING LAKE VIEW WITH PRIVATE BEACH ACCESS! NEXT TO GOLF COURSE! has 5 Bedrooms , 3 Bathrooms, and max occupancy of 25 people. The minimum rental for this property is 1 nights, but this can change depending on the season you plan on staying. Previous guests have given good rated it, and VRBO labeled it a top-rated House because of the excellent services rendered by the owner or manager of this House, and has consistently provided great experiences for their guests. Most families or guests that use it recommend it to their friends and some of them are repeat guests. House has a friendly neighborhood, and the Sweetwater has interesting places to visit. If you want to learn more about the House in Sweetwater, such as places to visit and things to do nearby, you can check below to learn more.
Amenities
Policies
Extra-person charges may apply and vary depending on property policy government-issued photo identification and a credit card, debit card, or cash deposit may be required at check-in for incidental charges host has indicated there is a carbon monoxide detector on the property host has indicated there is a smoke detector on the property parties and events are allowed on site safety features at this property include a fire extinguisher, a first aid kit, and a deadbolt lock special requests are subject to availability upon check-in and may incur additional charges; special requests cannot be guaranteed this property has outdoor spaces, such as balconies, patios, terraces which may not be suitable for children; if you have concerns, we recommend contacting the property prior to your arrival to confirm they can accommodate you in a suitable room this property is managed through our partner, vrbo. you will receive an email from vrbo with a link to a vrbo account, where you can change or cancel your reservation